- Accueil
- Vente
- Saone et loire
- Macon
- PROGRAMME NEUF - MACON SUD MAISON 112 M² DE PLAIN-PIED - CONSTRUCTION MODERNE 2025 TOIT PLAT - GARAGE 21 M²-
Référence : 464
Calculette
Partager
PROGRAMME NEUF - MACON SUD MAISON 112 M² DE PLAIN-PIED - CONSTRUCTION MODERNE 2025 TOIT PLAT - GARAGE 21 M²-
Description de l'offre
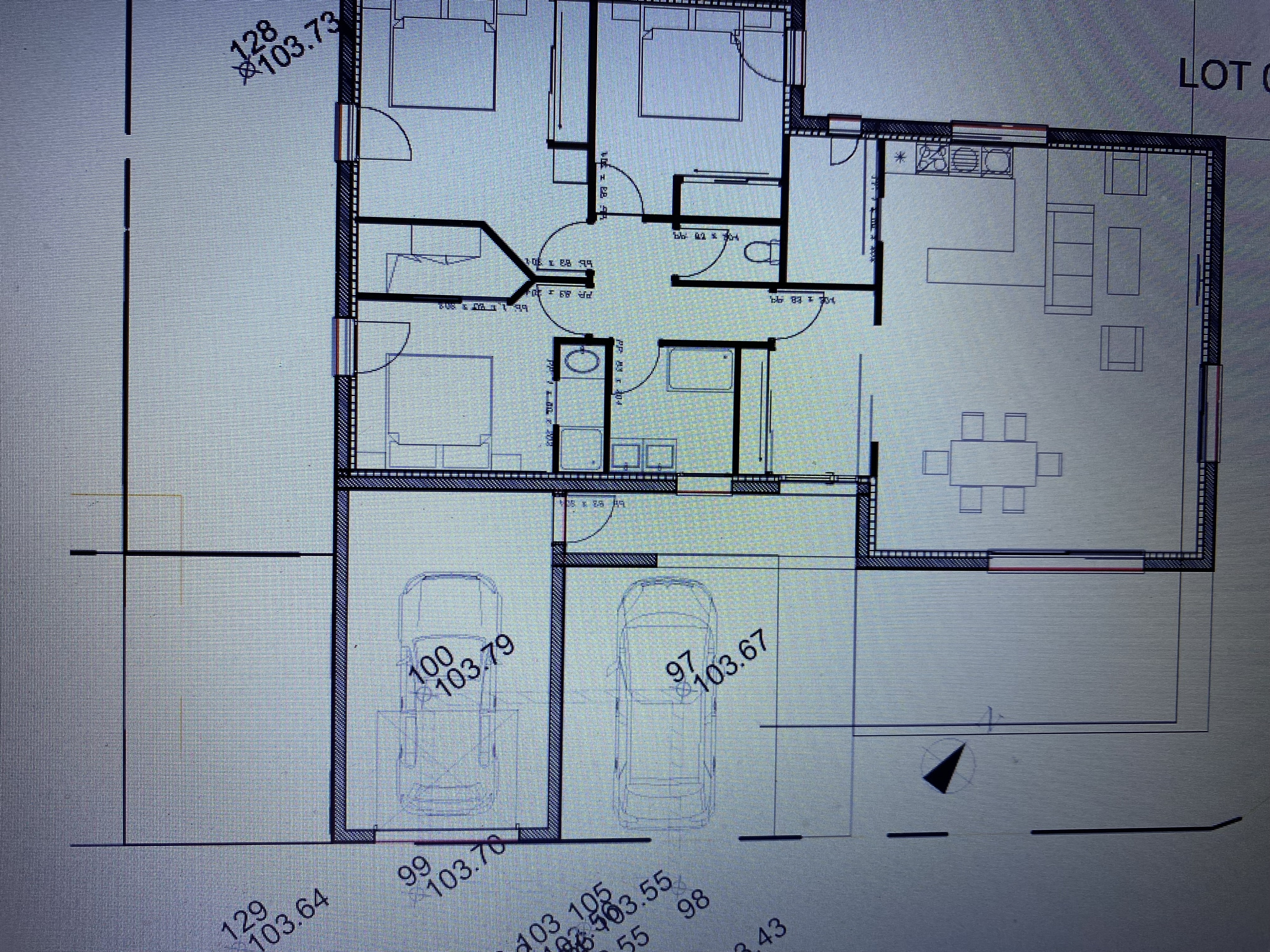
MACON SUD -PROGRAMME NEUF ENCORE DEUX LOTS A LA VENTE DANS UN CLOS PRIVE DE 6 LOTS - BEL EMPLACEMENT POUR CETTE VILLA MODERNE DE PLAIN-PIED 112 M² AVEC GARAGE DE 21 M² CONSTRUCTION EN COURS LIVRAISON JUIN 2026, emplacements de stationnement, une pièce à vivre de 48, m² avec cuisine équipée ( possibilité de choisir le modèle et coloris dans une gamme définie par le constructeur), un cellier, un hall d'entrée ,1 wc, une suite parentale de 17 m² avec dressing et sde avec douche, une salle de bain de 5 m² avec baignoire, des prestations et finitions de qualité, 2 autres chambres de 15 /12 m² , parquet,prises télé, usb, volets roulants motorisés,. Chauffage au sol chauffant et rafraîchissant chaudière pompe à chaleur, Isolation phonique et thermique renforcée, garantie décénale, à proximité des accès A6/A40/A406 à 5 minutes de la gare TGV LOCHE - Dispensé de DPE art.R134-1 CCH - Norme PMR - Frais de notaire réduits 3% - MANDAT N°464 - Pour plus de renseignements et envoi de brochure : Contactez Evelyne 06.08.49.64.59 ou mail evelyne@ethimmologis.com RSAC 344342001 Bourg en Bresse Les informations sur les risques auxquels ce bien est exposé sont disponibles sur le site géorisques : WWW.georisques-gouv.fr
Descriptif du bien
- Code postal : 71000
- Surface habitable (m²) : 112 m²
- surface terrain : 504 m²
- Nombre de chambre(s) : 3
- Nombre de pièces : 5
- Nb de salle de bains : 1
- Nb de salle d'eau : 1
- Mode de chauffage : Pompe à chaleur
- Type de chauffage : Au sol
- Format de chauffage : Individuel
- Interphone : OUI
- Visiophone : OUI
- Année de construction : 2025
- Terrain piscinable : OUI
- Terrain arboré : NON
- Copropriété : OUI
- Lot n° : 1
- nombre de lots : 6
- plan de sauvegarde : NON
- Prix de vente : 350 000 €
- Les honoraires d'agence seront intégralement à la charge du vendeur
La ville de Mâcon (71000)
Ce bien vous intéresse ?
Partager l'offre
Eth'immo-logis
Crêches-sur-Saône (71680)
Les informations recueillies sur ce formulaire sont enregistrées dans un fichier informatisé par La Boite Immo agissant comme Sous-traitant du traitement pour la gestion de la clientèle/prospects de l'Agence / du Réseau qui reste Responsable du Traitement de vos Données personnelles.
La base légale du traitement repose sur l'intérêt légitime de l'Agence / du Réseau.
Elles sont conservées jusqu'à demande de suppression et sont destinées à l'Agence / au Réseau.
Conformément à la loi « informatique et libertés », vous disposez des droits d’accès, de rectification, d’effacement, d’opposition, de limitation et de portabilité de vos données. Vous pouvez retirer votre consentement à tout moment en contactant directement l’Agence / Le Réseau.
Consultez le site https://cnil.fr/fr pour plus d’informations sur vos droits.
Si vous estimez, après avoir contacté l'Agence / le Réseau, que vos droits « Informatique et Libertés » ne sont pas respectés, vous pouvez adresser une réclamation à la CNIL.
Nous vous informons de l’existence de la liste d'opposition au démarchage téléphonique « Bloctel », sur laquelle vous pouvez vous inscrire ici : https://www.bloctel.gouv.fr
Dans le cadre de la protection des Données personnelles, nous vous invitons à ne pas inscrire de Données sensibles dans le champ de saisie libre.
Ce site est protégé par reCAPTCHA, les Politiques de Confidentialité et les Conditions d'Utilisation de Google s'appliquent.
